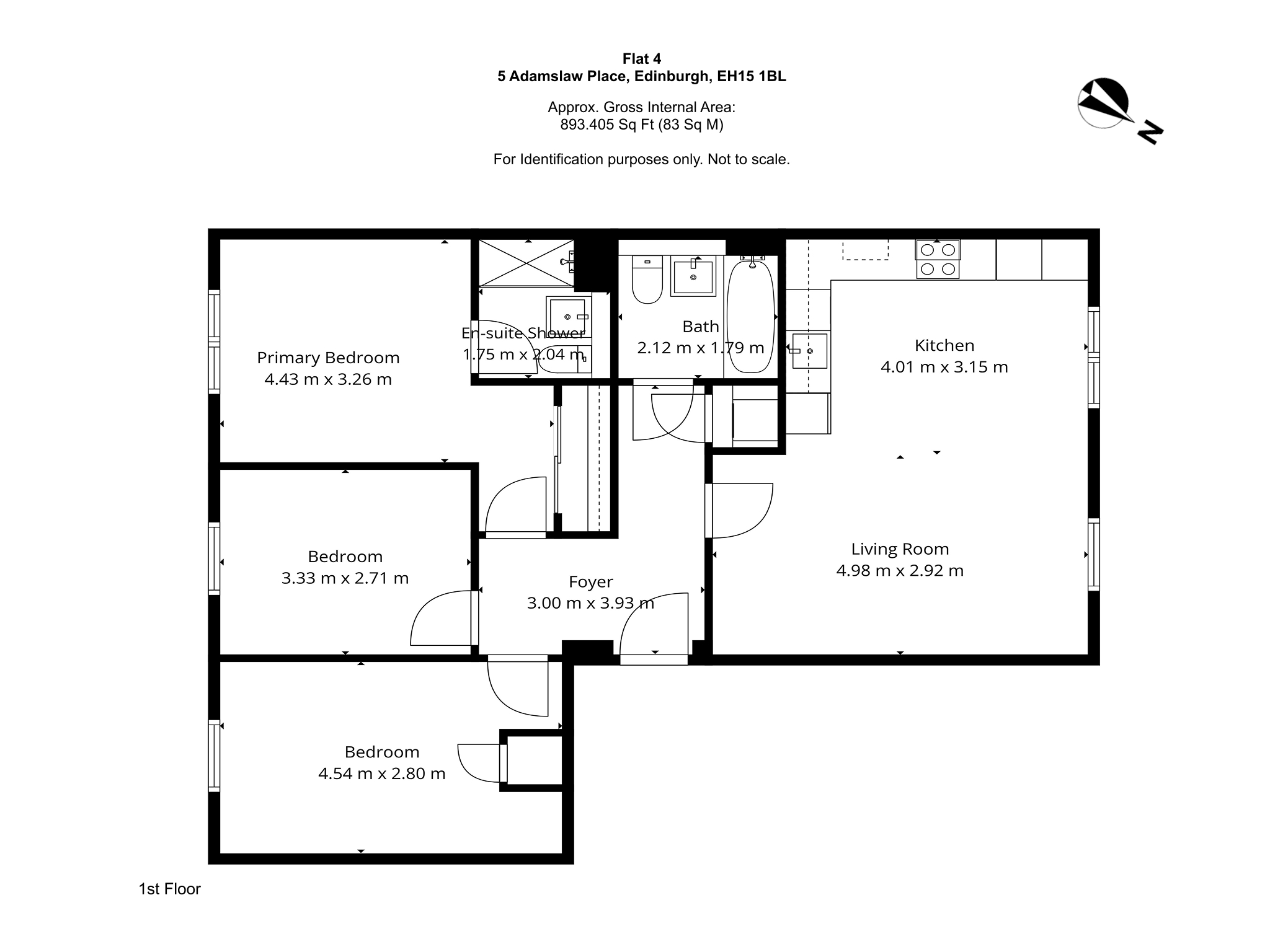
A beautifully presented three-bedroom spacious flat, situated within Portobello’s highly sought-after new build estate. Located on the first floor, this stunning home offers a bright and airy open-plan kitchen and living area, perfect for modern living and entertaining.
The property boasts three generously sized bedrooms, including a principal bedroom with a modern ensuite shower room. The remaining two bedrooms are equally well-proportioned, and all three bedrooms have access to a main bathroom which is immaculate in condition. The home further benefits from a contemporary finish throughout and a separate utility cupboard providing dedicated space for a washing machine, helping to keep the main living areas clutter-free.
Residents enjoy ample parking and a secure entry system, providing both convenience and peace of mind.
Ideally positioned just a five-minute walk from Portobello Beach, the property also enjoys easy access to local amenities, transport links, and the vibrant seaside atmosphere the area is known for.
Portobello is one of Edinburgh’s most desirable coastal suburbs, renowned for its stunning sandy beach and vibrant seaside atmosphere. Offering the perfect balance between city living and coastal charm, the area has a strong sense of community and an abundance of independent cafés, restaurants, and local shops.
The promenade is a particular highlight, providing beautiful views across the Firth of Forth and a popular spot for walking, cycling, and outdoor leisure. Residents also benefit from excellent local schooling, leisure facilities, and convenient transport links into Edinburgh city centre and beyond.
With its relaxed coastal feel, thriving local scene, and easy access to the capital, Portobello continues to be a highly sought-after location for a wide range of buyers.
Early viewing is highly recommended to fully appreciate all this exceptional property has to offer.





















































































